פירוט:
פרויקט דירות למכירה בסלוניקי, יוון.
בבנין בן 7 קומות במרכז העיר, מעל קומת מסחר וקומות מרתף.
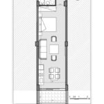
בקומה הראשונה חלל עבודה משותף/משרדים, בקומות 1-4 שש דירות סטודיו(כ 30- מ”ר+מרפסת), בקומות 5-6 שני מיני פנטהאוזים (כ – 45 מ”ר+מרפסת גדולה), ובקומה השביעית פנטהאוז בשטח כל הקומה עם גג עצום.
ממוקם ברחוב מצוין בשכונה הכי תוססת בעיר, בתי מלון בוטיק חדשים וחנויות מעצבים.
במרחק של כמה עשרות מטרים (כ – 3 דק הליכה) מתחנת המטרו הקרובה.
מיקום הבנין קלאסי להשכרה במודל AIRBNB , סמיכות לאיזורי בילוי, לתחבורה ציבורית, רובע Ladadika , שדרת הקניות וכו’.
מחירי הדירות נעים בין 60,000€ ל – 100,000€, דירות הפנטהאוז במחיר של כ – 271,000€.
תכניות
קומת הקרקע –
קומות 2 עד 5 –
קומה 6 –
קומה 7 –
קומה 8 –
לפרטים נוספים צרו קשר עם משרדינו בטלפון – 04-6360664














